GESELLSCHAFT FÜR IMMOBILIEN- UND FINANZIERUNGSVERMITTLUNG MBH COPYRIGHT 2012
GESELLSCHAFT FÜR IMMOBILIEN- UND FINANZIERUNGSVERMITTLUNG MBH COPYRIGHT 2012
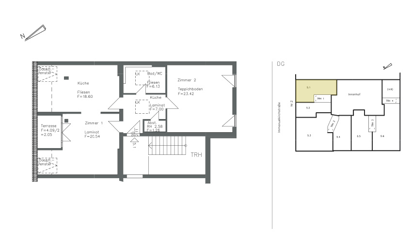
VH | DG | 79 QM - VERKAUFT
ECKDATEN
| ZIMMER | 2 |
| GRÖSSE | 79qm |
| LAGE | VH, DG rechts |
| AUFZUG | Ja |
| BALKON / TERASSE | Ja |
| AUSSTATTUNG | Erstbezug nach Sanierung |
| PREIS PRO QM | 3.670€/qm |
| KAUFPREIS | 290.000€ zzgl. 7,14% Käufer-Provision inkl. MwSt. |
| EXTRA | TERRASSE, WOHNKÜCHE, NEUES PARKETT |
WOHNUNGEN