GESELLSCHAFT FÜR IMMOBILIEN- UND FINANZIERUNGSVERMITTLUNG MBH COPYRIGHT 2012
GESELLSCHAFT FÜR IMMOBILIEN- UND FINANZIERUNGSVERMITTLUNG MBH COPYRIGHT 2012
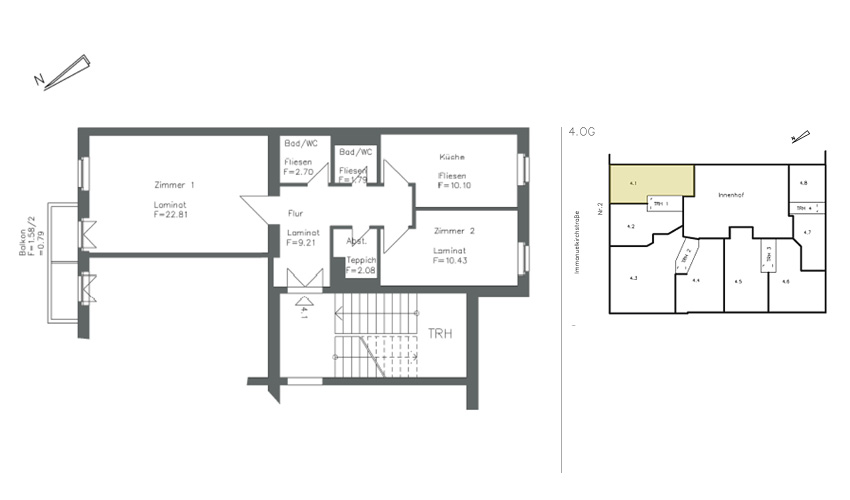
VH | 4.OG | 60QM
ECKDATEN
ZIMMER | 2 |
GRÖSSE | 60qm |
LAGE | VH, 4.OG rechts |
AUFZUG | Ja (Anbau 2014) |
BALKON / TERASSE | Ja |
AUSSTATTUNG | Renovierungsbedarf |
PREIS PRO QM | 3.333€/qm |
KAUFPREIS | 200.000€ zzgl. 7,14% Käufer-Provision inkl. MwSt. |
EXTRA | BALKON, ABSTELLKAMMER |
WOHNUNGEN