GESELLSCHAFT FÜR IMMOBILIEN- UND FINANZIERUNGSVERMITTLUNG MBH COPYRIGHT 2012
GESELLSCHAFT FÜR IMMOBILIEN- UND FINANZIERUNGSVERMITTLUNG MBH COPYRIGHT 2012
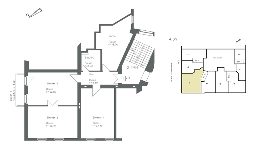
1.SFL | 4.OG | 100QM - VERKAUFT
ECKDATEN
| ZIMMER | 3 |
| GRÖSSE | 100qm |
| LAGE | 1.SFL, 4.OG links |
| AUFZUG | Nein |
| BALKON / TERASSE | Ja |
| AUSSTATTUNG | Renovierungsbedarf |
| PREIS PRO QM | 3.100€/qm |
| KAUFPREIS | 310.000€ zzgl. 7,14% Käufer-Provision inkl. MwSt. |
| EXTRA | BALKON, DIELEN |
WOHNUNGEN