GESELLSCHAFT FÜR IMMOBILIEN- UND FINANZIERUNGSVERMITTLUNG MBH COPYRIGHT 2012
GESELLSCHAFT FÜR IMMOBILIEN- UND FINANZIERUNGSVERMITTLUNG MBH COPYRIGHT 2012
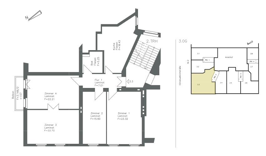
1.SFL | 3.OG | 116QM - VERKAUFT
ECKDATEN
| ZIMMER | 4 |
| GRÖSSE | 116qm |
| LAGE | 1.SFL, 3.OG rechts |
| AUFZUG | Nein |
| BALKON / TERASSE | Ja |
| AUSSTATTUNG | Erstbezug nach Sanierung |
| PREIS PRO QM | 3.330€/qm |
| KAUFPREIS | 386.000€ zzgl. 7,14% Käufer-Provision ink MwSt. |
| EXTRA | WOHNKÜCHE, NEUE DIELEN |
WOHNUNGEN